Bất động sản Đà Lạt » Mua bán Nhà đất Đà Lạt » đường Trần Phú » CẦN SANG DỰ ÁN MẶT TIỀN TRẦN PHÚ ĐÀ LẠT Chìa Khoá trao tay 25.5 tỷ (VĂN PHÒNG + KẾT HỢP CĂN HỘ CHO THUÊ)
CẦN SANG DỰ ÁN MẶT TIỀN TRẦN PHÚ ĐÀ LẠT Chìa Khoá trao tay 25.5 tỷ (VĂN PHÒNG + KẾT HỢP CĂN HỘ CHO THUÊ)
▪Đất xây dựng
Lộ giới: 24m (Cách Trung Tâm Hành Chính Tỉnh 50m)
Diện tích: 89m2. Mặt tiền: 5.6m x 17m
Pháp lý: sổ riêng
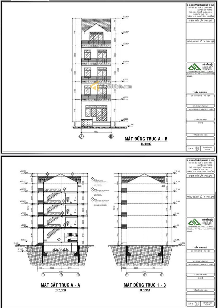
▪Dự án xây dựng (Giống Hình 3D, thiết kế, giấy phép xây dựng)
QH XD: 6 Tầng 1 Hầm, 1 trệt, 3 lầu, 1 Áp Mái
DT XD: 60m2 x6 tầng = 360m2
▪Tổng chi phí (25.5 tỷ)
Giá đất: 22.5 tỷ (Có thể mua riêng TL)
Chi phí XD: 3 tỷ (Chưa Bao Gồm Nội Thất)
Giá bán: 25,5 tỷ TL -- MS: #06B4
Cập nhật cách đây 39 ngày, tin còn đăng là còn bán.



